×

Archives

No archives to show.

Categories

  • No categories

FORGOT YOUR DETAILS?

Toe & Heeling
Guide

Please review this guide before glazing your bifold doors

Toe & Heeling Adjusting Tool

The adjusting tool is designed to help adjust doors after beading

Step-by-Step Guide

STEP ONE

Pack bottom corner with 2 x 4mm bridge packers and 2 x 5mm glazing packers - See Toe & Heeling Guide for placement

STEP TWO

Place 2 x 4mm bridge packers to the head of the prepped corner, use silicone to hold in place

STEP THREE

Insert glass unit - Insert plastic corner and steel cover - MUST BE FITTED

STEP FOUR

Wind Adjusting Screw into Block with 4mm allen key - tighten to adjust door height. Introduce further packers if required between corner packer and glass

STEP FIVE

Tap beads in when alignment is complete

Installing the Doors

Glazing and Toe & Heeling

Single Doors

Double Doors

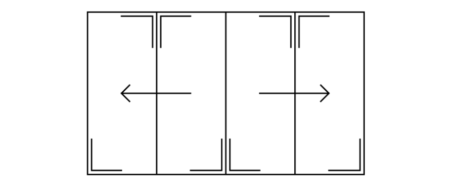
3-Pane Doors

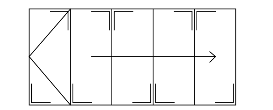
4-Pane Doors

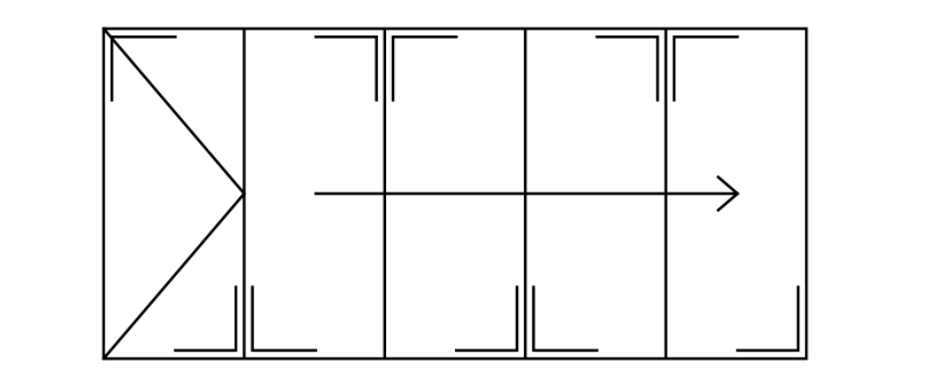
5-Pane Doors

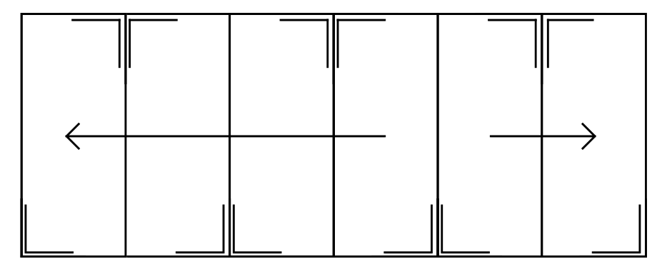
6-Pane Doors

Toe & Heel Guide 2023

TOP